Àº¼ºÅ×Å©
ȸ»ç¼Ò°³
ȸ»ç¼Ò°³
Àλ縻
ǰÁúÀÎÁõ¼
»ý»ê°øÁ¤
ã¾Æ¿À½Ã´Â±æ
Á¦Ç°¼Ò°³¡¡
Á¦Ç°¼Ò°³
¹ßÄڴϳ°£
°è´Ü³°£
¿Á»ó³°£
´ãÀå³°£
¿¡¾îÄÁ½Ç¿Ü±â¹Þħ´ë
°ø»ç½ÇÀû
°ø»ç½ÇÀû
°ø»ç½ÇÀû
»ó´ã¹®ÀÇ
»ó´ã¹®ÀÇ
1:1¹®ÀÇ
e-īŻ·Î±×¡¡
īŻ·Î±×
īŻ·Î±×
ȸ»ç¼Ò°³
Àλ縻
ǰÁúÀÎÁõ¼
»ý»ê°øÁ¤
ã¾Æ¿À½Ã´Â±æ
Á¦Ç°¼Ò°³
¹ßÄڴϳ°£
°è´Ü³°£
¿Á»ó³°£
´ãÀå³°£
½Ç¿Ü±â¹Þħ´ë
°ø»ç½ÇÀû
°ø»ç½ÇÀû
»ó´ã¹®ÀÇ
1:1¹®ÀÇ
e-īŻ·Î±×
e-īŻ·Î±×
ȸ»ç¼Ò°³
ȸ»ç¼Ò°³
ȸ»ç¼Ò°³
ǰÁúÀÎÁõ¼
»ý»ê°øÁ¤
ã¾Æ¿À½Ã´Â±æ
Á¦Ç°¼Ò°³
»ç¾÷¼Ò°³
¹ßÄڴϳ°£
°è´Ü³°£
¿Á»ó³°£
´ãÀå³°£
¿¡¾îÄÁ½Ç¿Ü±â¹Þħ´ë
°ø»ç½ÇÀû
°ø»ç½ÇÀû
°ø»ç½ÇÀû
»ó´ã¹®ÀÇ
»ó´ã¹®ÀÇ
1:1¹®ÀÇ
e-īŻ·Î±×
Home
-
Á¦Ç°¼Ò°³
-
¹ßÄڴϳ°£
Á¦Ç°¼Ò°³
PRODUCT
¹ßÄڴϳ°£
°è´Ü³°£
¿Á»ó³°£
´ãÀå³°£
¿¡¾îÄÁ½Ç¿Ü±â¹Þħ´ë
»ó´ã¹®ÀÇ
ÀüÈ
031-819-0789
ÇÚµåÆù
010-3765-3641
¹ßÄڴϳ°£
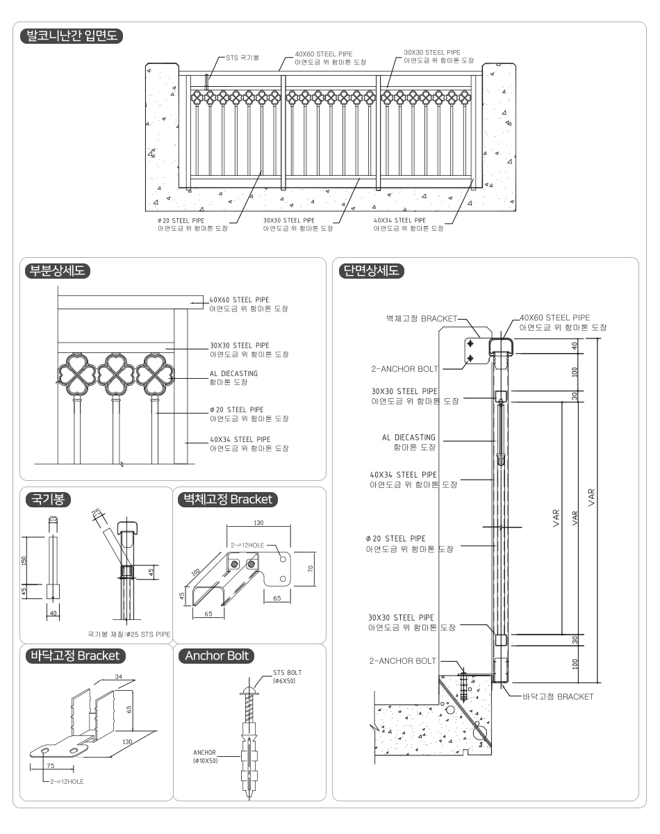
NSR-1
¡¡
¡¡
¡¡
¸ñ·ÏÀ¸·Î
TOP